
Tipo de Proyecto: Obra Nueva.
Alcance: Diseño.
Localización: España
Superficie: 7.200 m2
Año: 2010
Estado:
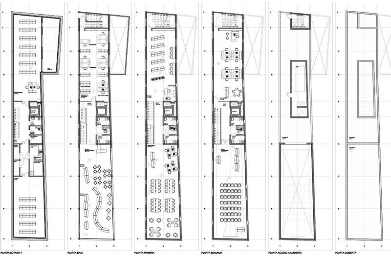
Siguiendo la forma irregular del lote, el edificio se alinea en ambas calles y con el límite de la Escuela de Estudios Hispanoamericana (EEHA), en la que encuentra un espacio propicio para abrir un frente hacia sus jardines. Actuando como telón de fondo, el edificio genera flujos, actividades y regenera un espacio verde que hoy es inútil, y que por cierto esta integrado en la secuencia de espacios verdes y públicos de Sevilla.
La fachada aparece como una superficie hecha de paneles homogéneos y texturizados que protege el espacio interior del sol directo, y simultáneamente proporciona expresividad. Las perforaciones en los paneles dibujan una secuencia de nombres de los escritores españoles, generando una clara identificación del carácter cultural del edificio. El punto de confluencia de las 2 calles presenta las interacciones más urbanas. El proyecto busca aquí revitalizar y contribuir a su dinamismo, interactuando con los flujos y las tensiones entre el tráfico peatonal, los jardines de la EEHA y el interior de la biblioteca. En este punto, la fachada pierde parte de su homogeneidad y solidez al sobreexponer la librería y la cafetería, invitando a la gente a ingresar a la exposición













